Sint Antoniusschool, Klein Zundert

Een huis in het dorp

Het ontwerp voor de Sint Antoniusschool in Klein Zundert geeft ruimte terug aan het dorp. Een uitgestrekte, eenlaagse school heeft plaats gemaakt voor een compacte, duurzame school omgeven door openbaar groen in het hart van het dorp. Het nieuwe park rondom de school is de plek waar kinderen tijdens en na schooltijd buiten spelen in een natuurlijke omgeving, waar bewegen, leren en ontdekken wordt gestimuleerd.

Categorie
Onderwijs & Sport
Opdrachtgever
Stichting Primair Onderwijs Zundert (SPOZ)
Periode
2022 - 2024
Oppervlakte
1710 m²
Programma
Basisschool met 13 klaslokalen, speellokaal en ondersteunende functies
Fotografie

Rene de Wit

In het kwekers- en tuindersdorp Klein-Zundert is de inrichting van het park mede tot stand gekomen door de levering van planten en bomen door de lokale middenstand. Dat maakt de plek bij uitstek een collectieve ruimte voor en door het dorp.

De architectonische verschijningsvorm van het tweelaagse, gepleisterde gebouw met licht hellende kap is onderscheidend en ingetogen tegelijk.

De entree van de school is duidelijk herkenbaar door een insnijding in het heldere kruismotief van de massa en de ritmiek van vensters volgt de organisatie en oriëntatie van de klaslokalen in de school.

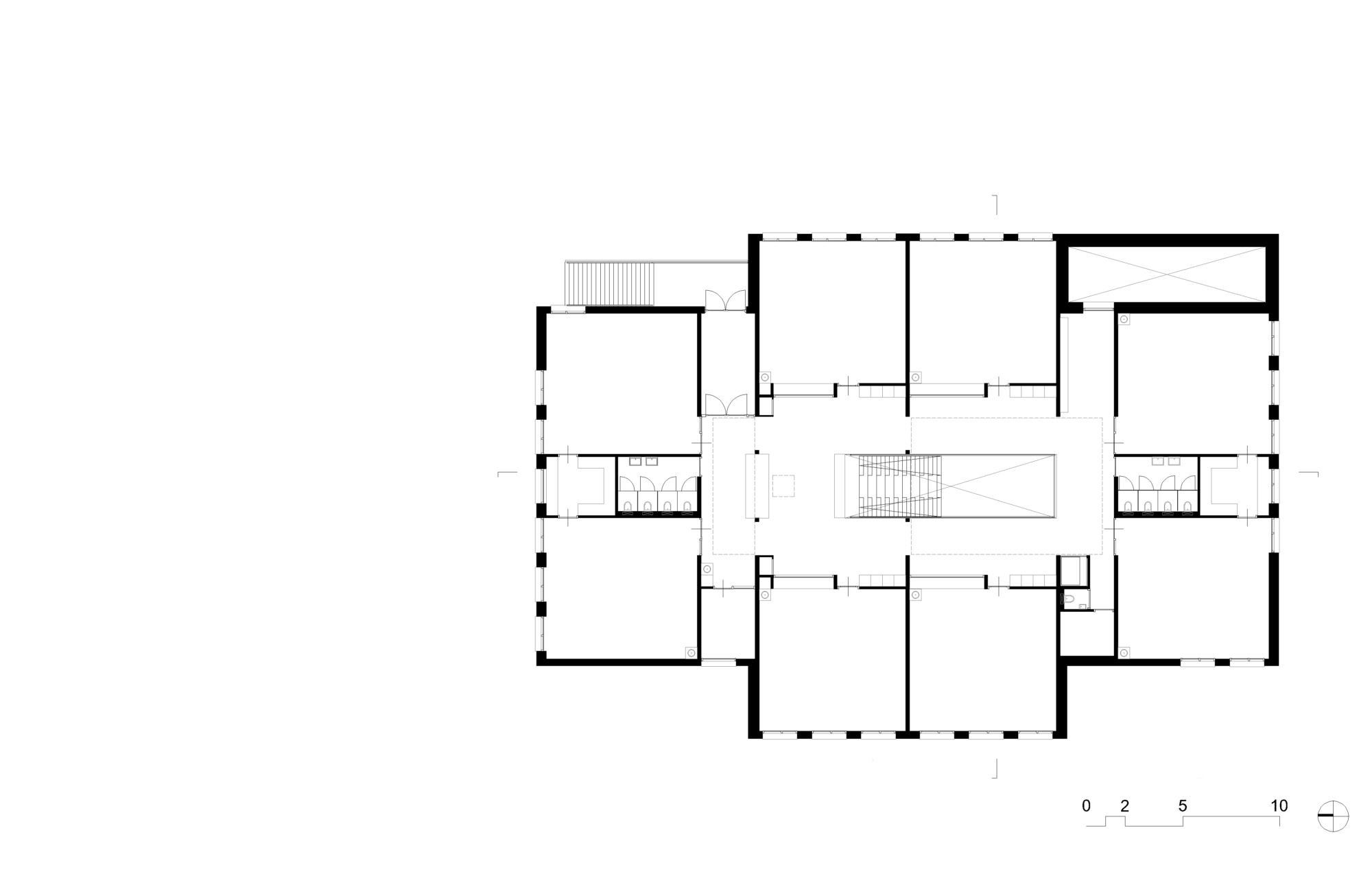
De organisatie van het programma is helder en efficiënt. De basis voor de structuur van het schoolgebouw zijn de klaslokalen die bestaan uit een standaard moduulmaat van 8 bij 8m.

Door deze modules ten opzichte van elkaar te verschuiven, ontstaan tussenruimtes voor leerondersteunende functies en entrees, die allen uitkomen in de ruimtelijke, lichte aula in het hart van de school.

De klassen zijn van de aula gescheiden door een wandvullend meubelstuk waar bergruimte, garderobe en expositieruimte in is voorzien. De positie van dit meubelstuk ten opzichte van de aula wisselt, waardoor sommige lokalen kleiner zijn en de beschikking hebben over een verwerkingsruimte buiten de klas.

Tekeningen

Plattegrond begane grond
Plattegrond eerste verdieping
Plattegrond dak
Langsdoorsnede
Dwarsdoorsnede

Het hart van de school is verbonden met het omringende park middels de speelzaal die gekoppeld kan worden aan de aula tot één grote multifunctionele ruimte voor vieringen en bijeenkomsten.

Het interieur is rustig en ingetogen met lichte, natuurlijke tonen en een hart in hout waardoor het interieur ruimte laat aan de leerlingen om kleur en invulling te geven aan hun eigen school.

Het leemkleurige pleisterwerk, de blank houten kozijnen in accoya en de zorgvuldige, terughoudende detaillering, maakt dat het gebouw zich dienstbaar opstelt naar het omliggende groen.

Tegelijkertijd voegt de mate van abstractie, versterkt door de zonwering in kleur van de gevel, en de vorm van het hellende dak, een nieuwe architectonische laag toe aan het dorp waardoor de school zich naast de kerk onderscheidt als een belangrijk gebouw voor de gemeenschap.

Architect

Jaap Bekkers

Team

Mark Hereijgers
Matthijs Spijkers
Gina Vermeeren
Auke Leijten

Aannemer
VB Bouw
Projectmanagement
HEVO
Adviseur constructie
Archimedes
Adviseur installatie
Vintis
Adviseur bouwfysica, akoestiek en brandveiligheid
ZRi
Meer weten over dit project?

Neem contact met ons op.