Kantoor Singelveste, Breda

Betaalbare kwaliteit

Het kantoor Singelveste is een onderdeel van een ontwikkellocatie aan het spoor, ten zuidwesten van het NS station, naast de uitbreiding van hotel Mercure en tegenover een karakteristieke woonbuurt. De bijzondere locatie met ambitieus programma heeft tot een intensieve samenwerking geleid met de gemeente, spoorbouwmeester, omwonenden, adviseurs en natuurlijk de opdrachtgever.

Categorie
Kantoren
Opdrachtgever
NS Poort
Periode
2006 - 2010
Oppervlakte
4000 m²
Programma
Flexibele kantoorruimtes; tweelaagse parkeergarage
fotografie

Rene de Wit

De opdracht voor het kantoorgebouw omvatte het realiseren van een marktconform gebouw, voor een vooraf bekende huurder, woningbouwcorporatie Singelveste, nu onderdeel van Allee Wonen. Zij zijn dan ook nauw betrokken geweest bij het proces.

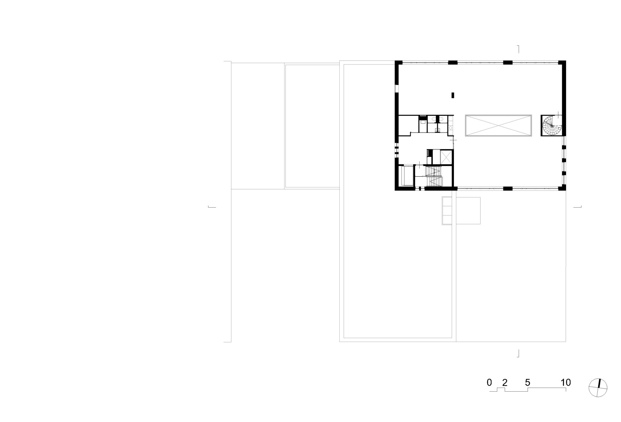
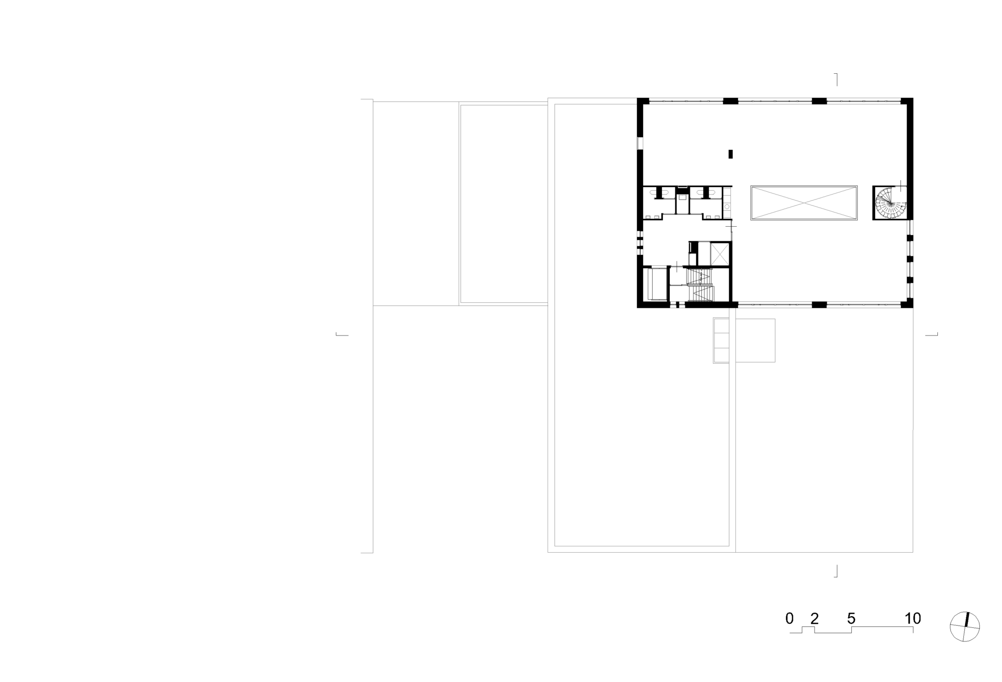
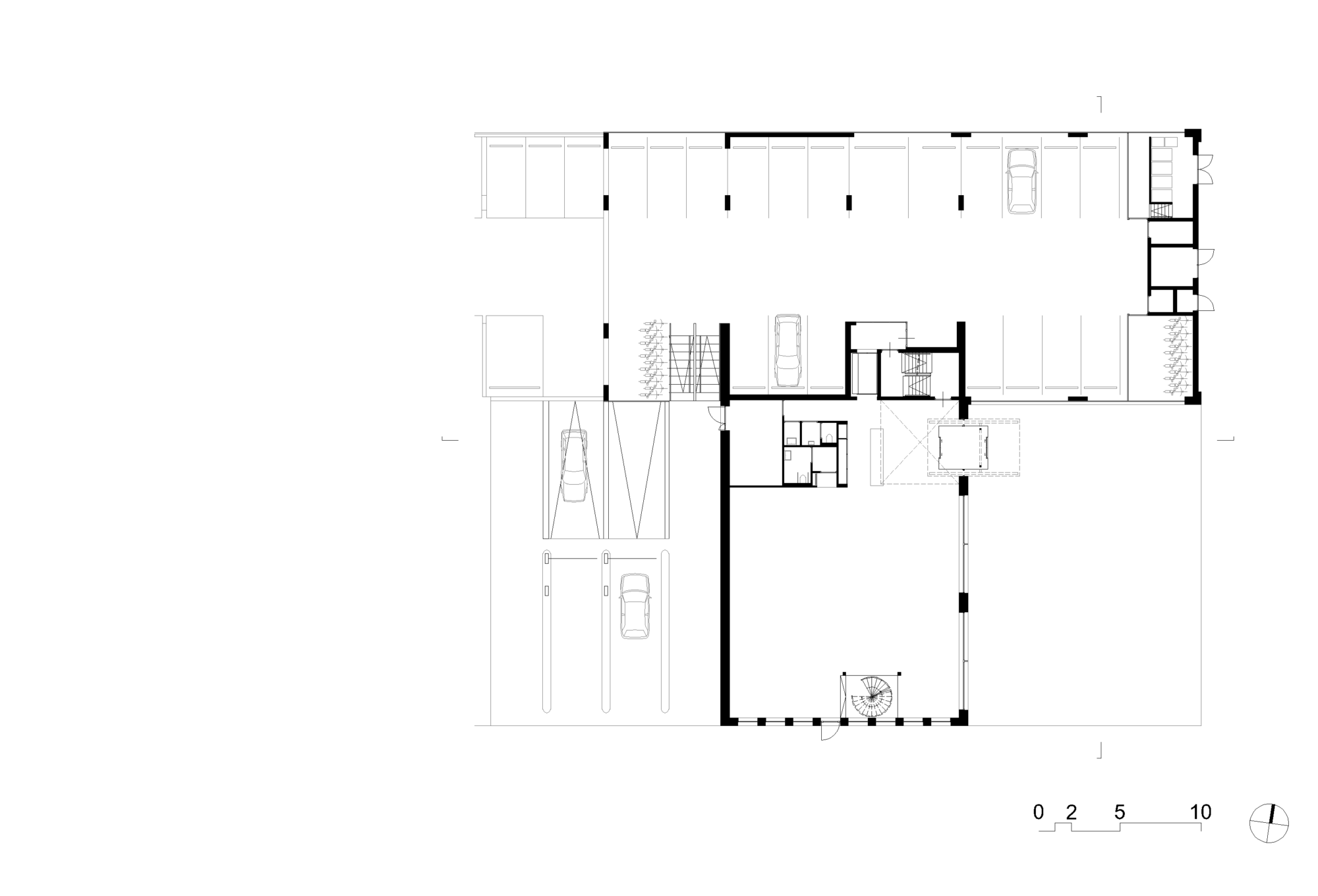
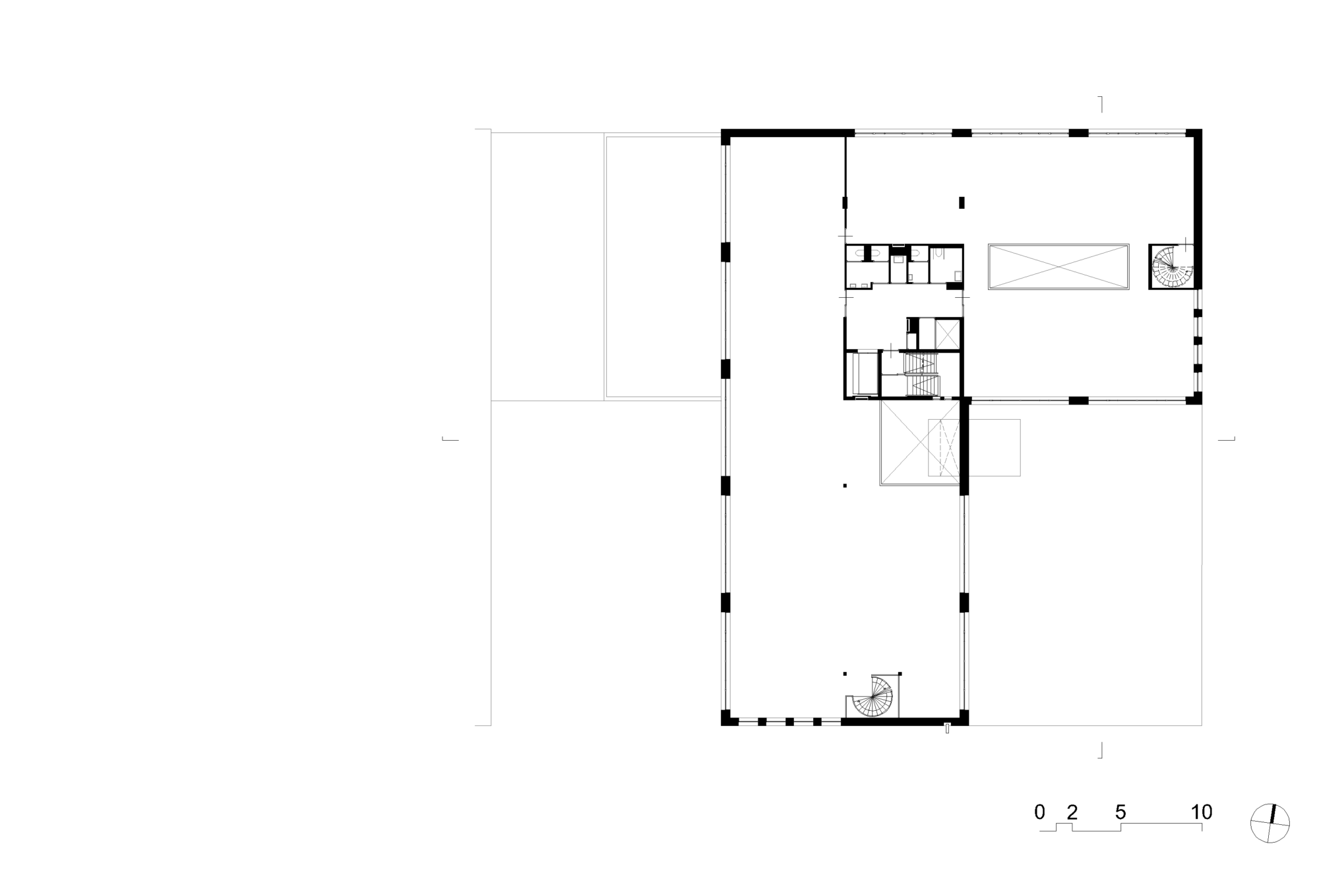
Belangrijke eis was om het gebouw zodanig te ontwerpen dat Singelveste hun specifieke wensen konden realiseren in het gebouw, maar dat tegelijkertijd voor in de toekomst het gebouw een grote mate van flexibiliteit behield. Dit is bereikt door te werken met grote overspanningen met vrije vloer- en plafondvelden. Trappenhuizen, lift, schachten met installaties en toiletgroepen zijn zo geplaatst dat elk van de twee in elkaar grijpende bouwvolumes, maar ook de afzonderlijke verdiepingen zelfstandig kunnen functioneren.

De maatvoering van het gebouw is uitgezet op het standaard kantoorstramien in een veelvoud van 1,8 meter, als ook op de onderliggende parkeerkelder.

De breedte van de kelder is 16 meter, en leidt tot een aangename overmaat in de middenzone van het gebouw. Deze is nu ingevuld met vides, sanitaire groepen, pantry’s en zitgelegenheden, maar zou ook met vloeren verdicht kunnen worden. De lichte ruimte geeft het interieur een dynamisch karakter, met de gelegenheid tot informeel ontmoeten in het hart van het gebouw.

Bijkomend voordeel is dat aan praktisch alle gevels de mogelijkheid ligt om kantoorruimten te realiseren. Samen met de grote puien geeft dit het gebouw een open karakter en veel lichtinval. De kozijnen zijn zo opgedeeld dat deze de indelingsmogelijkheden van de ruimten niet in de weg staan.

Tekeningen

Plattegrond kelder
Plattegrond begane grond
Plattegrond eerste verdieping
Plattegrond tweede verdieping
Plattegrond derde verdieping
Plattegrond vierde verdieping
Plattegrond vijfde verdieping
Plattegrond zesde verdieping
Doorsnede 1
Doorsnede 2

Het gebouw heeft, naast de genoemde openheid, een stevig en massief karakter.

De zorgvuldig uitgekozen Hilversum formaat metselsteen, de diepe negge en teruggestreken lintvoeg laten het gebouw moeiteloos passen in de locatie en geven het een duurzame en statige uitstraling. De detaillering en het materiaalgebruik zijn doeltreffend en sprekend, en zo gekozen dat deze in de loop van de tijd hun schoonheid behouden.

Architect

Pascal Grosfeld

Team

Mark van der Mast
Arian van Loon

Aannemer
Winters Bouw en Ontwikkeling
Bouwbegeleiding
Bouwkundige Begeleidings Adviesgroep (BBA)
Constructief advies
Adviesbureau Tielemans BV
Installatie advies
J. van Toorenburg BV
Meer weten over dit project?

Neem contact met ons op.